您当前的位置: 首页 > 公寓房产
【O2021】SYGROU NEA SMIRNI地区公寓出售,售价260.000 € 编号:

Property Code:O2021

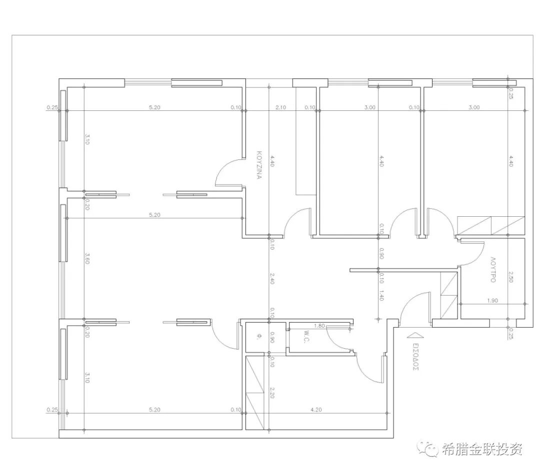
Property Info-物业信息

Type/类型

APARTMENT

Location-位置

SYGROU NEA  SMIRNI

Size-尺寸

136 M2

Land Size-用地规模

N/A

Price/价格

260.000 €

Rent/租金

785 €

Construction  Year-建筑年份

1976(2019新装修现在办公室)

Floor  Location-楼层位置

3RD  FLOOR(3楼)

Bedrooms/Bathroom-卧室/浴室

3 卧室 / 1厅/1厨/2 卫生间

Heating  System-加热系统

NATURAL GAS(煤气)

Parking-停车库

NO

Balcony-阳台

YES

Storage Room-储存室

NO

Other Information-其他信息,SYGROU 商业街道,136平方米,可以办公、也可以居住,离市中心3公里,海边4公里,机场30公里,目前出租,是有稳定收入的。

 




免费在线咨询